Bedrijvenpark Bapaume A1
Unieke zichtlocatie in Noord-Frankrijk
Project in voorbereiding
Status.
ProjectvoorbereidingBouwjaar.
2026-2027Architect.
Aavo ArchitectOpdrachtgever.
LCV Real EstateCategorie.
KMO - Kantoren - LogistiekOntdek dit nieuwe project in voorbereiding. Bedrijvenpark Bapaume heeft vele troeven, zo is dit bedrijvenpark gelegen aan de E15/A1 met een zeer sterke zichtbaarheid vanaf de autostrade. Dit perceel ligt centraal tussen Rijsel en Parijs, de A1 vormt hier dan ook de ideale verbinding tussen deze twee steden.
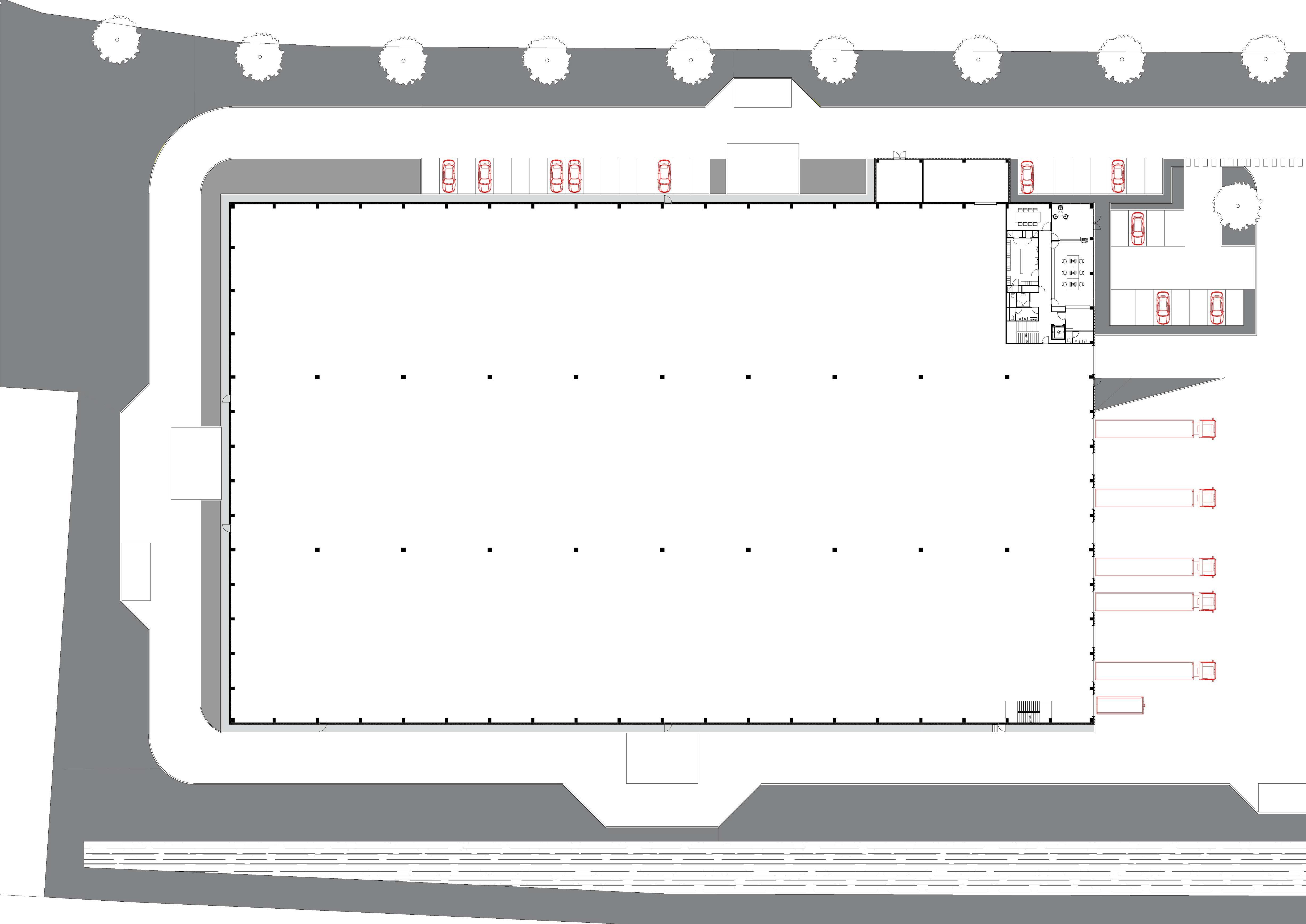
In dit nieuwe bouwproject zijn er zowel loodsen voor logistiek, kantoren en kmo-units ingepland.
In blok A bevindt zich een loods van 8640 m² en een kantoor van 242 m². In blok B bevinden zich twee loodsen van 4200 m² en 8550 m², alsook twee kantoren van elk 242 m². In de laatste blok, blok C, bevindt zich een combinatie van 1 loods van 6834 m², een kantoor van 242 m² en 8 kmo-units met een oppervlakte tussen 284 m² en 1154 m². Dit aanbod is zowel beschikbaar om te huren als te kopen, de klant kan dus zelf kiezen wat het best aansluit bij zijn/haar strategie.
Mis deze unieke kans niet om deel uit te maken van dit nieuwe project. Indien u interesse hebt en meer informatie wenst kan u contact met ons opnemen voor meer informatie. Dan bekijken we samen hoe u uw bedrijf kunt vestigen op deze uitzonderlijke locatie.




Locatie
Contact












![[:swvar:ufile:12:description:]](/swfiles/files/Logo-cookies.jpg?nc=1773312188)