Bedrijvenpark The Edge
Nieuwbouwproject The Edge
Langs de E17 Gent-Kortrijk
Momenteel is 80% reeds ingevuld
Status.
UitvoeringBouwjaar.
2024 - 2026Architect.
Piet Bailyu - Project ArchitectsOpdrachtgever.
LCV Real EstateCategorie.
Loods - KantorenFootprint.
21.345 m²Bedrijvenpark The Edge: Een nieuw landmark langs de E17
Bent u op zoek naar een bedrijfsruimte met maximale zichtbaarheid en een sterke strategische ligging? Bedrijvenpark The Edge is dé nieuwe referentie voor ondernemingen in Zuid-West-Vlaanderen. Gelegen langs de E17, op de grens van Waregem en Deerlijk, combineert dit innovatieve project moderne architectuur, duurzame technieken en flexibele ruimtes op maat van ondernemers.
The Edge ligt op een unieke locatie langs een van de drukste verkeersaders van het land: de E17 tussen Gent en Kortrijk. Met zijn hoogte van bijna 40 meter is The Edge het hoogste gebouw in de regio – een architecturaal landmark dat letterlijk in het oog springt. De zichtbaarheid voor duizenden voorbijrijdende voertuigen is ongezien. Dankzij de ligging op de grens van Waregem en Deerlijk is het bedrijvenpark bovendien vlot bereikbaar voor personeel, klanten en leveranciers.
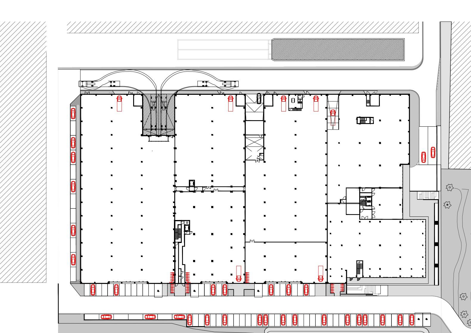
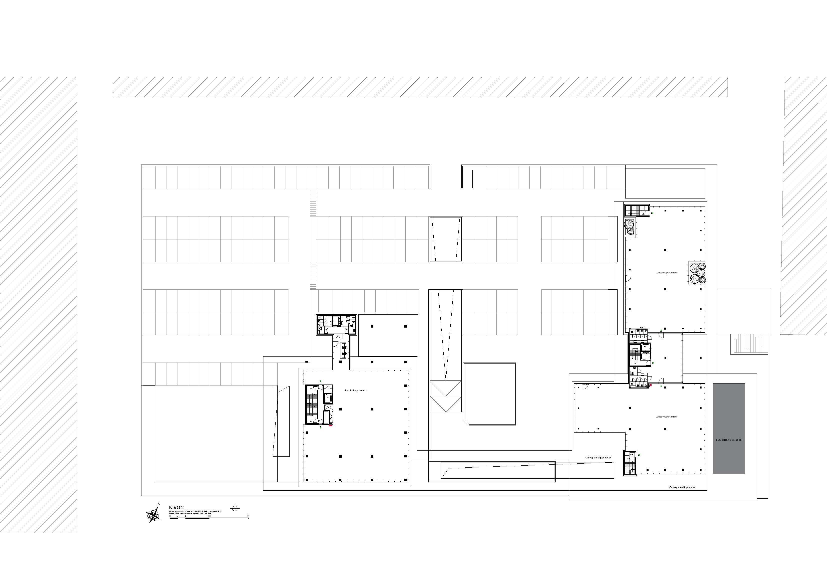
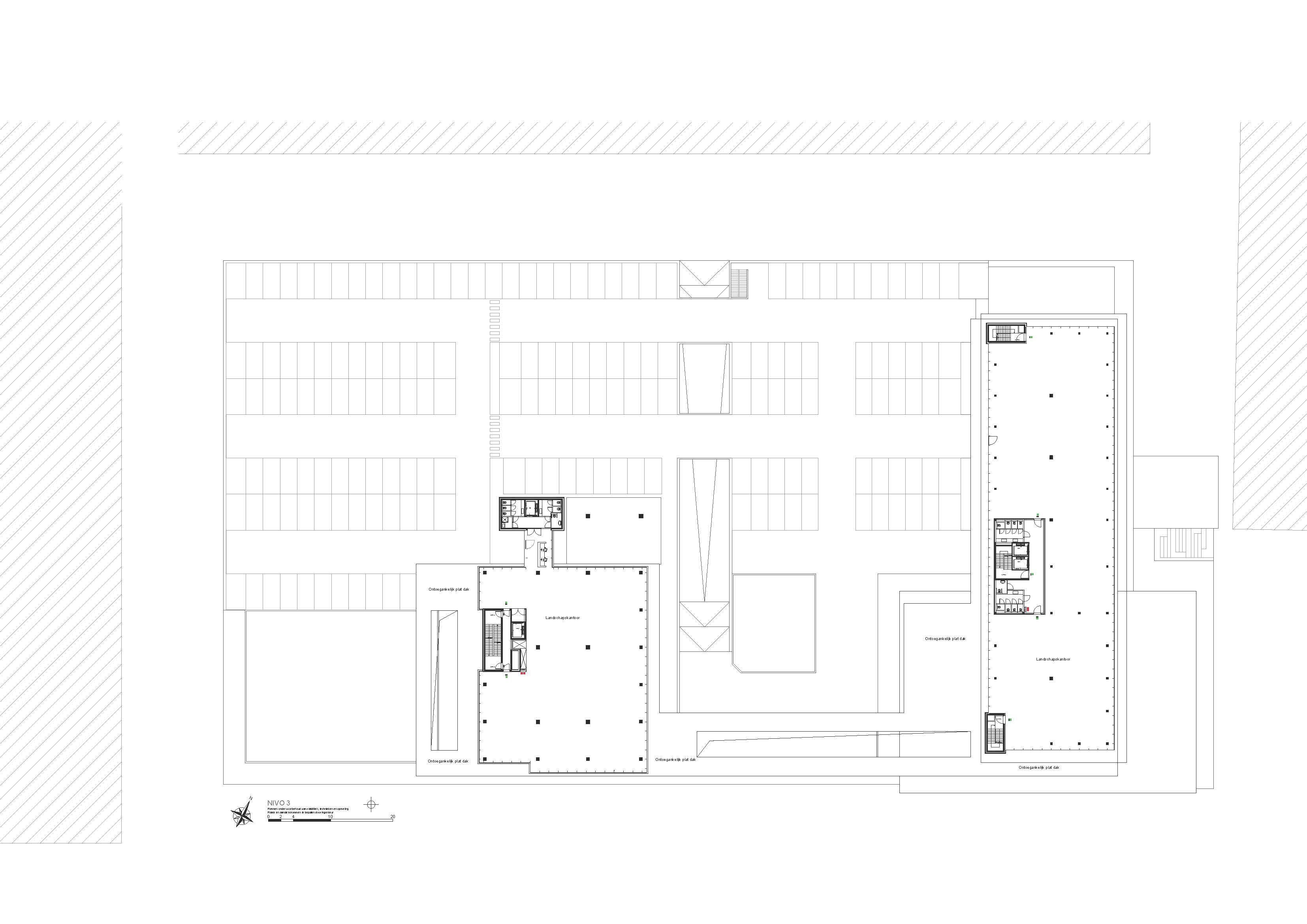
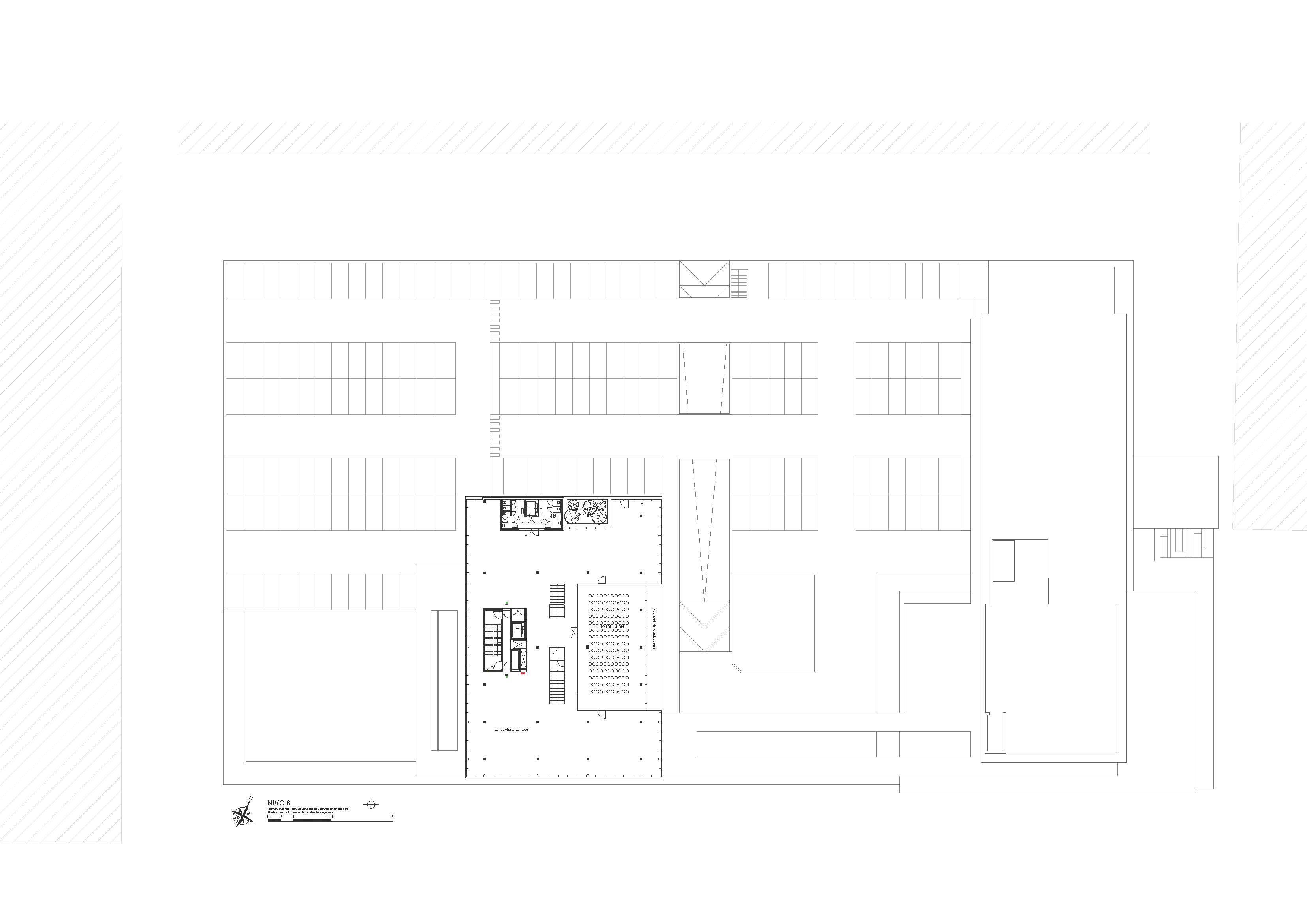
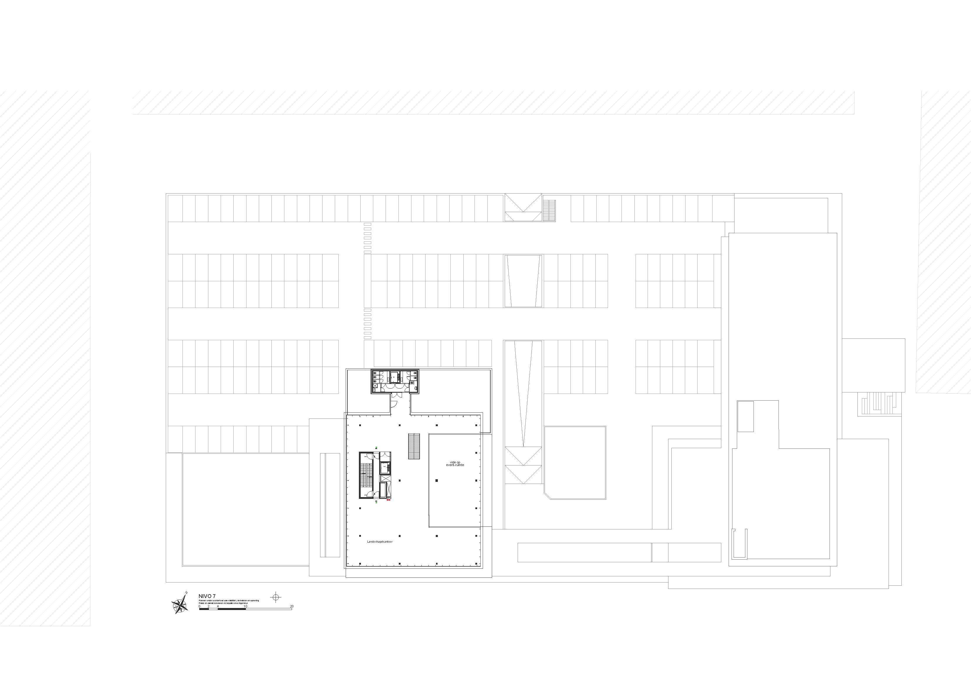
The Edge is meer dan een gebouw – het is een toekomstgericht bedrijvenpark waar kantoren en loodsen slim gecombineerd worden. De ruimtes zijn afgestemd op de noden van groeiende en dynamische bedrijven, met bijzondere aandacht voor ondernemers uit de bouw- en productiesector. Toren A telt vier verdiepingen en beschikt over een ruime showroom van 400 m², terwijl toren B met zijn zeven verdiepingen ideaal is voor ambitieuze groeibedrijven. Daarnaast omvat het project zes KMO-units (loodsen) met oppervlaktes tussen 705 m² en 3.693 m². Deze loodsen zijn flexibel indeelbaar dankzij minimale tussenkolommen, en geschikt voor productie, opslag of distributie.
Bij het ontwerp van The Edge is volop ingezet op duurzaamheid en efficiëntie. Energiezuinige technieken, een strakke en tijdloze architectuur en een doordacht ruimtegebruik vormen de basis van het concept. Alles is gericht op duurzaam en flexibel ondernemen, zowel vandaag als in de toekomst. Het bedrijvenpark biedt ondernemingen een stabiele en performante omgeving om te groeien.
De vraag naar ruimtes in The Edge is groot: intussen is al meer dan 80% ingevuld. Er zijn nog slechts enkele loodsen en kantoorverdiepingen beschikbaar voor verhuur. Wilt u uw bedrijf vestigen op deze uitzonderlijke locatie langs de E17? Neem dan vandaag nog contact op voor meer informatie.








Locatie
Contact














![[:swvar:ufile:12:description:]](/swfiles/files/Logo-cookies.jpg?nc=1761822529)