Bedrijvenpark Lokeren E17
Nieuwbouwproject E17
Unieke zichtlocatie in Oost-Vlaanderen
17 KMO-units, kantoren en build to suit
Status.
OpgeleverdBouwjaar.
2023 - 2025Architect.
Tecro & KreaOpdrachtgever.
LCV Real EstateCategorie.
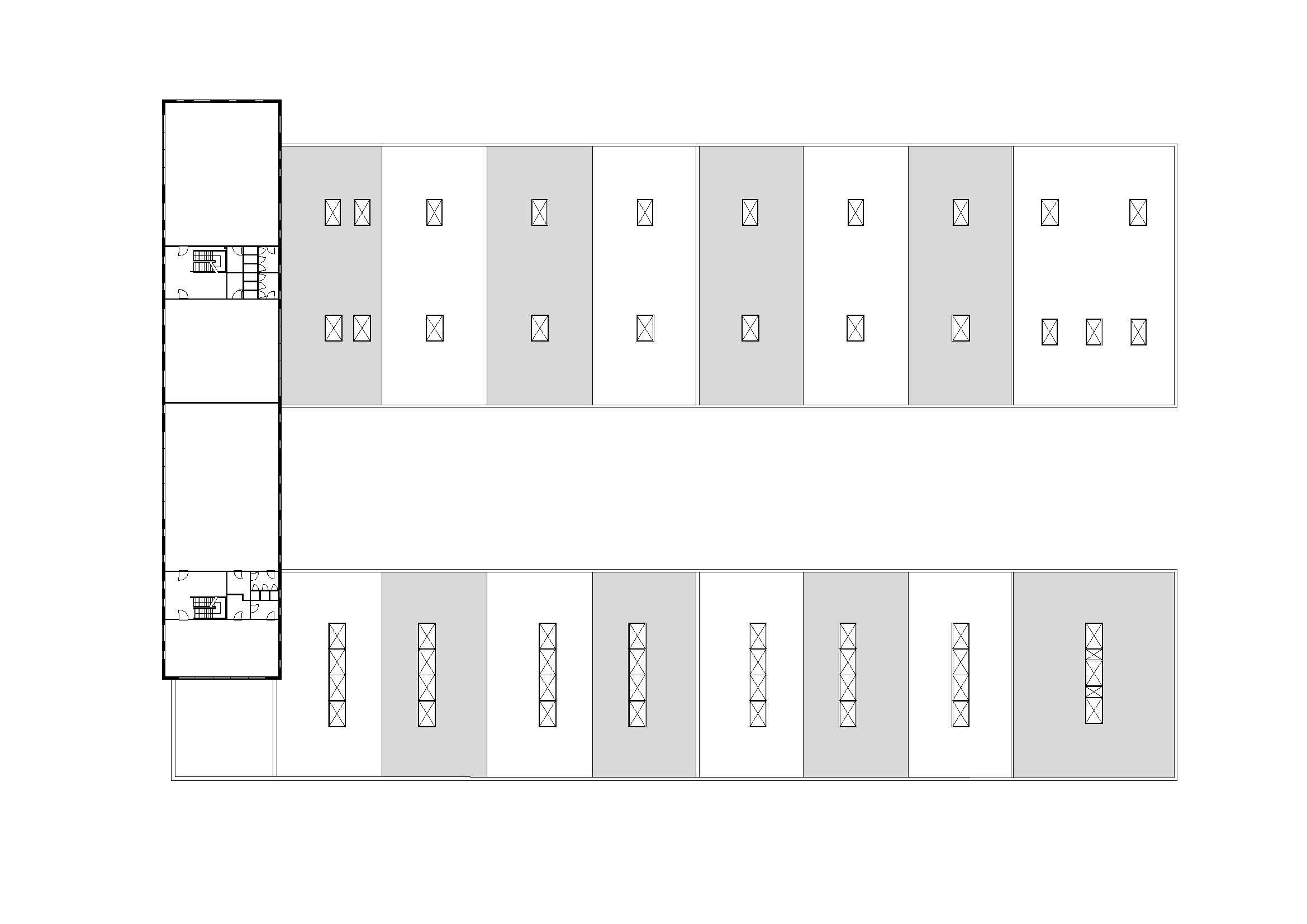
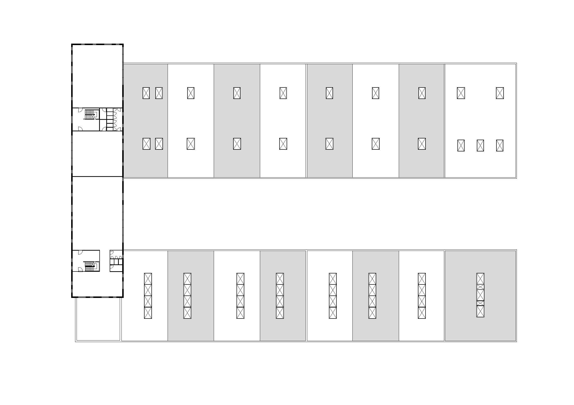
KMO units - KantorenFootprint.
10.551 m²Op zoek naar de perfecte locatie voor uw bedrijf in Oost-Vlaanderen? Ontdek onze hoogwaardige KMO-units en kantoren in Lokeren, gelegen met een uitstekende zichtbaarheid vanaf de E17 en op minder dan 10 minuten rijden van de op- en afrit van de snelweg. Dit bedrijvenpark biedt met deze units en kantoren een ideale bereikbaarheid en zichtbaarheid voor uw onderneming.
Onze units variëren in grootte van 144m² tot een ruime 1605m², waardoor er voor elke behoefte een passende oplossing is. Op het eerste en tweede verdiep kan u de kantoren vinden met een oppervlakte die varieert tussen 92m² en 366m². Mis deze kans niet om uw bedrijf te positioneren op een strategische locatie met een directe verbinding naar belangrijke snelwegen.
Neem vrijblijvend contact met ons op voor meer informatie over deze unieke kans om uw bedrijf te laten groeien in Lokeren.



Locatie
Contact














![[:swvar:ufile:12:description:]](/swfiles/files/Logo-cookies.jpg?nc=1773312188)