Bedrijvenpark Panier Vert
Unieke locatie in Waals-Brabant
Project in voorbereiding
Status.
ProjectvoorbereidingBouwjaar.
2025Architect.
RG architectesOpdrachtgever.
LCV Real EstateCategorie.
KMO units - KantorenFootprint.
9.875 m²Welkom bij Bedrijvenpark Panier Vert, uw ideale zakelijke bestemming in het charmante Nijvel. Met zijn unieke zichtlocatie in het hart van Waals-Brabant en de nabijheid van de E19 snelweg, biedt dit park een uitstekende bereikbaarheid en zichtbaarheid voor uw bedrijf.
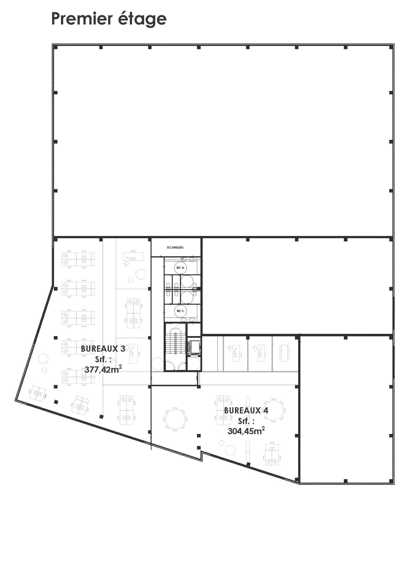
Dit opkomende project belooft een mix van 28 KMO-units en 5 kantoren, ontworpen om aan de behoeften van diverse bedrijven te voldoen. Met een totale oppervlakte van 9.875m², is er voldoende ruimte om uw bedrijf te laten groeien. De oppervlaktes van de units variëren tussen 168m² en 1092m².
Er is ook aandacht besteed voor het nodige groen te voorzien om een aangename en mooie werkomgeving te creëren.
Als u geïnteresseerd bent in dit project, nodigen wij u uit om vrijblijvend contact met ons op te nemen voor meer informatie. Ontdek vandaag nog hoe u kunt profiteren van de vele voordelen van dit goed gelegen project en laat uw bedrijf groeien op Bedrijvenpark Panier Vert!
Contact
Heeft u een vraag over één van deze units? Contacteer vrijblijvend.















![[:swvar:ufile:12:description:]](/swfiles/files/Logo-cookies.jpg?nc=1761822529)