Bedrijvenpark De Vier Kronen
Uitstekende zichtlocatie in Oost-Vlaanderen
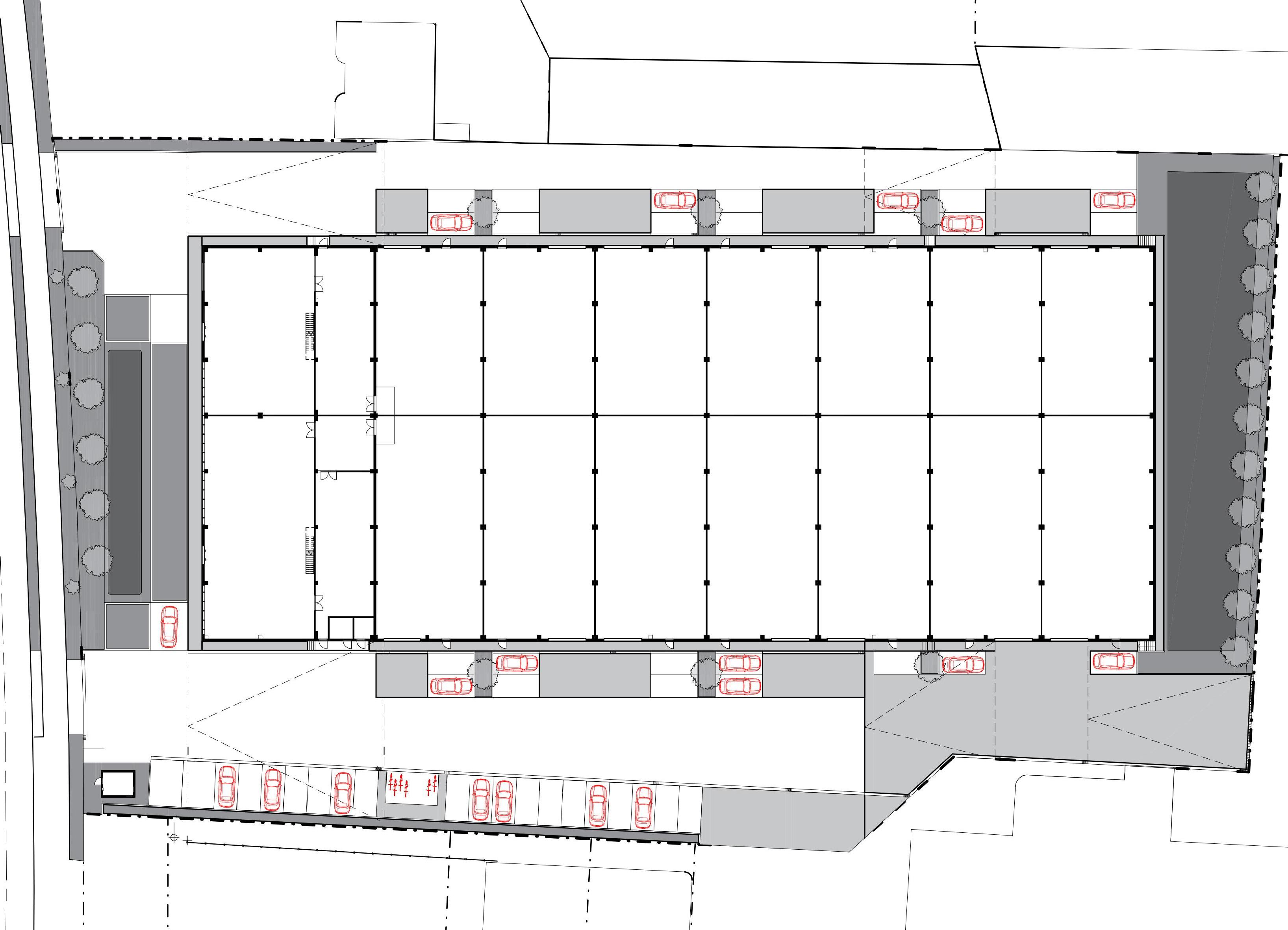
14 KMO-units + Showroom
Project in voorbereiding
Status.
ProjectvoorbereidingBouwjaar.
2026Architect.
Stranger ArchitectOpdrachtgever.
LCV Real EstateCategorie.
KMO units - showroomFootprint.
4.356 m²Het nieuwe KMO-bedrijvenpark, gelegen aan de Viermaartlaan in Ronse, Oost-Vlaanderen, biedt een strategische locatie voor ondernemers op zoek naar een opslagruimte, magazijn, bedrijfsruimte of industriële gebouw. Dit project omvat 14 hoogwaardige KMO-units met bruto-oppervlaktes van 213 m² tot 297 m², ideaal voor uiteenlopende bedrijfsactiviteiten.
Elke unit is ontworpen met oog voor kwaliteit en functionaliteit. De indeling zonder tussenkolommen biedt een optimaal bruikbare bedrijfsruimte, die volledig kan worden aangepast aan de specifieke noden van uw onderneming. U kunt kiezen voor extra functies, zoals een afgescheiden kantoorruimte of een toonzaal. Bovendien beschikt het bedrijvenpark over een toonzaal met een mezzanine van 150 m² en een afhaalmagazijn met een mezzanine van 112 m², die extra opslagcapaciteit creëren.
De units zijn uitermate geschikt voor bedrijven actief in opslag, productie, distributie en groothandel. Dankzij de strategische ligging in Oost-Vlaanderen geniet u van een uitstekende bereikbaarheid, wat dit bedrijvenpark tot een aantrekkelijke keuze maakt voor zowel kleine als middelgrote ondernemingen.
De units worden casco te koop of te huur aangeboden en kunnen op verzoek volledig op maat worden afgewerkt. Hierdoor kunnen de ruimtes eenvoudig aangepast worden aan specifieke bedrijfsprocessen of sectorale vereisten.
Waarom kiezen voor dit bedrijvenpark?
- Strategische locatie met uitstekende bereikbaarheid in Oost-Vlaanderen.
- Moderne en flexibele bedrijfsunits, ideaal als opslagruimte, magazijn, of industriële werkplek.
- Maatwerkopties om tegemoet te komen aan specifieke noden.
- Geschikt voor diverse sectoren, waaronder groothandel, opslag, productie en distributie.
Locatie
Contact











![[:swvar:ufile:12:description:]](/swfiles/files/Logo-cookies.jpg?nc=1761822529)